1、PURPOSE
The PE pipeline does not stop loses the opening trap equipment to be suitable in the urban PE fuel gas loses the tubing nema network’s construction work. Mainly applies in presses the movement in the belt gas rangeon the PE pipeline pipe network meets the branch, affixes or replaces the valve, the replacement length of pipe, the pipeline to re-route and to transform, as well as the service, the emergency repair, rush to deal with an emergency and construction works and so on processing pipeline breakdown, avoids the economic loss which and the adverse effect which stops because of construction work loses creates to the social product life, eliminated the biography to lead is mad the operating type the safe hidden danger.
2、FEATURE
The opening, seals off the rack to use in common, the installment is simple, the fan-shaped damper plate inlays in the rack, the structure is compact, the weight light, carries, the simplicity of operator, the trap conveniently strict, safe reliable.
3、ADAPTION SCOPE
Pipeline nominal diameter: DN
In tube medium temperature:
Medium pressure: ≤0.4MPa
PE tapping machine series
The PE tapping machine by part and so on drill rod, advanced gear, coupling, cabinet, protective covering and control handle handle is composed. The machine uses the artifical manual actuation, the opening knife jacking cutting, the drill rod auto-feed. The opening machine outer covering uses the flinty aluminum alloy material, organism is dexterous, is advantageous carries, the operation is simple.

PE trap machine series
The PE trap by the inside and outside drive shaft, the operating handle, the positioning pin installment, the eccentric coupling, spherical surface spare parts and so on locking arrangement, seating cup installment is composed. The drive shaft uses the jacketed structure, built-in seal packing collar. In the operating handle place the installment has the locking pin positioning device, when the leather cup opens with closed the locking pin can locate accurately.
PE trap MACHINE TECHNICAL PERFORMANCE PARAMETER

PE Under Blocking Sweep
The PE ext stops up by the operating handle, the main axle, the position ing device, the coupling, the combination calipers and so on is composed. The main axle is composed of the inside and outside control stick, the combination calipers install separately on the inner spindle and the outer spindle, but the relative rotation, may cause the combination calipers through the operation localization handle to be in “under stops up”, “the localization”, “the vacancy” three files positions, uses in fitting’s under stopping up separately raises stops up, the jamming to adjust the localization and the jamming and the main axle is separated from and so on functinos.
PE Cutter
The opening knife mainly by the jacking cutter body, the fluctuation protective covering, the hilt, the center drill and so on is composed. The opening uses the jacking cutting. After the center drill first works the opening calmly, the trepanning tool tooth starts to cut.
PE Rack
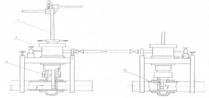
The rack mainly by the fan-shaped gate valve, on the thread coupling, seals the flange plate, the both sides base plate, changes the diameter clamp, the by-pass ball valve and diffuses the installment and so on several parts to be composed balanced. The rack is the opening machine, the trap, under stops up uses in common the part. In the construction work, opens through rack’s on fan-shaped gate valve shuts the function, carries on the opening trap equipment’s replacement.

Schematic plugging operations
Double seal double block diagram


Double seal double block diagram works
